- Apr 22: EXTENDED to 22 Apr;Closure:30 Mar-22 Apr 2026; 07:30-17:00; Clearway Parking Zone; Hatchs Hill, Steamers Hill and Angarrack Lane (2 days)
- Apr 24: Mobile Library | Friday 24 Apr 2026 (5 days)
- May 22: Mobile Library | Friday 22 May 2026 (33 days)
- Jun 19: Mobile Library | Friday 19 Jun 2026 (61 days)
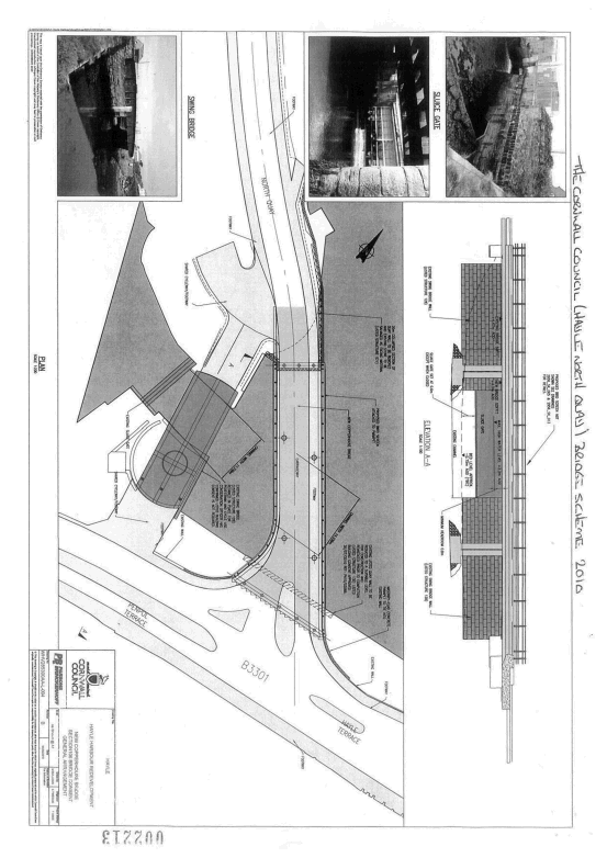
The Cornwall Council (Hayle North Quay) Bridge Scheme 2010 Confirmation Instrument 2010
THE SCHEDULETHE CORNWALL COUNCIL (HAYLE NORTH QUAY) BRIDGE SCHEME 2010The Cornwall Council (hereinafter referred to as “the Council”) make this scheme in exercise of their powers under section 106(3) of the Highways Act 1980 and of all other powers enabling them in that behalf.
1. The Council are authorised to construct over the navigable waters of Hayle Harbour the bridge specified in the schedule to this Scheme as part of the highway they are proposing to construct between Merchant Curnows Quay, Copperhouse, Hayle and the Renewable Energy Business Park, Hayle Habour, Cornwall.
2. This Scheme may be cited as The Cornwall Council (Hayle North Quay) Bridge Scheme 2010.
Given under the common seal of the Council on the 10 day of August 2010.
Executed as a deed by THE
CORNWALL COUNCIL
Whose Common Seal was
Hereunto affixed in the
Presence of:-
J Broadway
Authorised Officer
THE SCHEDULE TO THE SCHEMEPLANS AND SPECIFICATIONS OF THE HAYLE NORTH QUAY BRIDGEThe location and general design of the Bridge are shown on the attached plan and marked “The Cornwall Council (Hayle North Quay) Bridge Scheme 2010” sealed with the Common Seal of the Council and deposited at the offices of Cornwall Council, County Hall, Treyew Road, Truro, Cornwall, TR1 3AY and at the Department for Transport, Local Authority Orders, Wellbar House, Gallowgate, Newcastle Upon Tyne, NE1 4TD.
POINTS OF COMMENCEMENT AND TERMINATIONFrom a point on Merchant Quay, Copperhouse Hayle, 78m west of the junction of St Elwyns Rise with Hayle Terrace (B3301) to a point on North Quay 105m south-east of the junction of King George V Memorial Walk with North Quay Road.
SPANSThe bridge will consist of 3 spans, a northern span of 18.7m, a central span of 20.5m and a southern span of 14.7m giving an overall length of 53.9m.
HEADWAYNot less than 0.8m above a mean high water springs level of 3.2m above Ordnance datum.
WATERWAYA minimum clear navigable waterway beneath the centre span of 14.3m.
OVERALL DIMENSIONSThe bridge will accommodate a single two lane carriageway, a footway and a maintenance strip. The bridge will be 10.5m wide at its widest point and will carry a 6.0m wide carriageway, with a 2.5m wide footway to the east of the carriageway and 0.5m maintenance strip on the west of the carriageway.
Contributions
- Angarrack Defibrillator Team (25)
- Angarrack Inn (336)
- Angarrack Methodist Chapel (3)
- Carol (15)
- Gail (1)
- GordonG (12)
- Hayle Development Group on Facebook (5)
- Hayle Harbour Authority (4)
- Hayle Town Council (5)
- louise (1)
- Lynne (111)
- Mal (1)
- MattBuckley66 (9)
- Neil (22)
- Neils Garden Care (9)
- Russell (21)
- Secretary - Christmas Lights (141)
- Steve (3)
- webmaster (5122)
Book page
tags in
Similar
- 160901 | Sluicing again today at 10am. Around 11am tomorrow and potentially over the weekend. We can only sluice during spring t
- 160804 | North Quay, Hayle Harbour | Corinthian Land Ltd
- 160818 | Private parking signs fitted to speed limit signs. North Quay Hayle
- 160628 | Video | North Quay, Hayle, Cornwall from Kitchener Land and Planning
- 160601 | Hayle - Riviere Fields | MAJOR DEVELOPMENT OPPORTUNITY HAYLE HARBOUR, ST IVES BAY
Similar across site
- 160901 | Sluicing again today at 10am. Around 11am tomorrow and potentially over the weekend. We can only sluice during spring t
- 160804 | North Quay, Hayle Harbour | Corinthian Land Ltd
- 160818 | Private parking signs fitted to speed limit signs. North Quay Hayle
- 160601 | Hayle - Riviere Fields | MAJOR DEVELOPMENT OPPORTUNITY HAYLE HARBOUR, ST IVES BAY
- 160628 | Video | Riviere Fields, Hayle, Cornwall from Kitchener Land and Planning
Hayle and Angarrack news | Google
- Launceston's Colts beaten in thrilling final at Hayle - Cornish times
- Giant solar farm to be built across 22 fields in Cornwall after refusal overturned - Falmouth Packet
- Police chase dog walker carrying drugs worth £20K in a park in Cornwall - Cornwall Live
- The UK village with 'ghost' estate that's been abandoned for 10 years - Daily Express
- The UK village with 'ghost' estate that's been abandoned for 10 years - Daily Express
- The UK village with 'ghost' estate that's been abandoned for 10 years - Daily Express
- Empty estate shows a major housing crisis cause yet 'second homes blamed' - Cornwall Live
- Wetherspoon pub opens at Hayle holiday park - Cornwall Live
- Wetherspoon pub opens at Hayle holiday park - Cornwall Live
- Wetherspoon pub opens at Hayle holiday park - Cornwall Live
- Wetherspoon pub opens at Hayle holiday park - Cornwall Live
- Wetherspoon pub opens at Hayle holiday park - Cornwall Live
Problems within 7km of Hayle | FixMyStreet
Hayle News
- Launceston's Colts beaten in thrilling final at Hayle - Cornish times
- Please follow this link for the agenda:
- If you have any free events, classes or clubs taking place between 20th-26th April that we haven't mentioned, please feel free t...
- ???????????????????????????? ???????????????????????????????????? - ???????????????????????? ????????????????, ????????????????????????????????????
- This group is starting fortnightly on the 15th April between 1.15-3.15pm at the Hayle Family hub
- ???? Community Emergency Plan ????
- ???????????????? ????????????????????????, ???????????????? ???????????????????? ???????? ???????????? ???????????????????????????????? ???????????? ???????????? ????????????????????'???? ???????????????????????? ????????????????!
- A post from Hayle Town Council
Facebook - Hayle Town Council
- Please follow this link for the agenda:
- If you have any free events, classes or clubs taking place between 20th-26th April that we haven't mentioned, please feel free t...
- ???????????????????????????? ???????????????????????????????????? - ???????????????????????? ????????????????, ????????????????????????????????????
- This group is starting fortnightly on the 15th April between 1.15-3.15pm at the Hayle Family hub
- ???? Community Emergency Plan ????


Recent comments
11 weeks 4 days ago
16 weeks 4 days ago
16 weeks 4 days ago
31 weeks 4 days ago
51 weeks 1 day ago
51 weeks 1 day ago
51 weeks 1 day ago
51 weeks 1 day ago
1 year 20 weeks ago
1 year 35 weeks ago