- Apr 22: EXTENDED to 22 Apr;Closure:30 Mar-22 Apr 2026; 07:30-17:00; Clearway Parking Zone; Hatchs Hill, Steamers Hill and Angarrack Lane (4 days)
- Apr 24: Mobile Library | Friday 24 Apr 2026 (6 days)
- May 22: Mobile Library | Friday 22 May 2026 (34 days)
- Jun 19: Mobile Library | Friday 19 Jun 2026 (62 days)
080720 | W1/08-1024 | Construction of replacement dwelling Head No(s): 61815 | 10 Riverside Angarrack
Submitted by via Cornwall Pl... on Mon, 05/06/2017 - 16:54.
|
HAYLE |
MR STEVEN HARMAN |
10 RIVERSIDE ANGARRACK; CONSTRUCTION OF REPLACEMENT DWELLING |
via OCR - please check original at http://docs.planning.cornwall.gov.uk/rpp/showimage.asp?j=W1/08-1024&inde...
As of 2018 now at http://planning.cornwall.gov.uk/online-applications/applicationDetails.d...
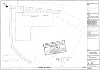
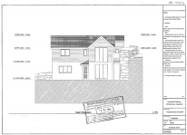
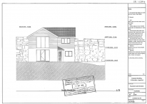
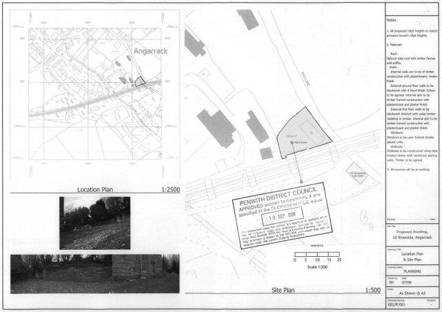
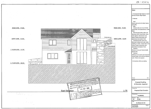
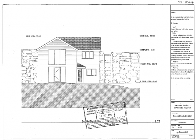
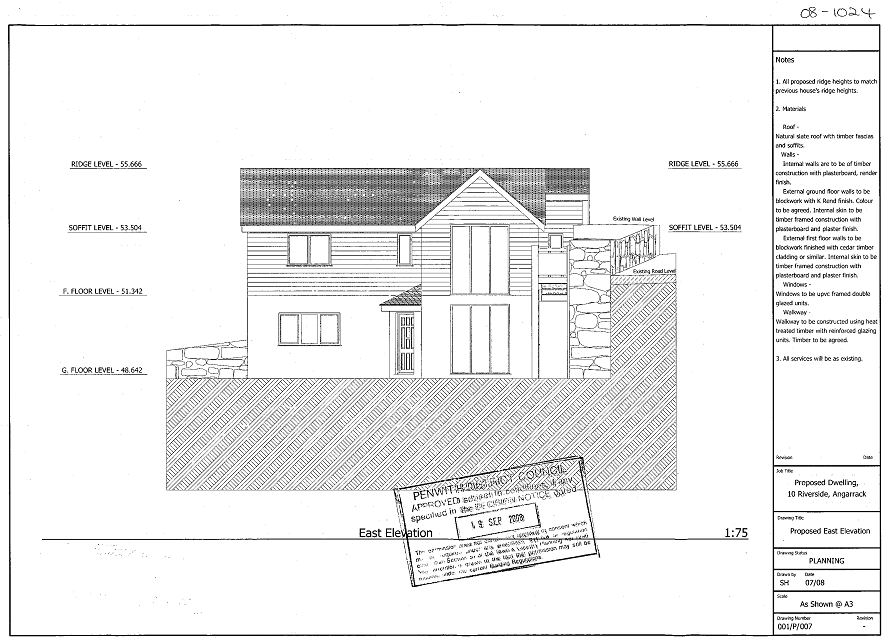
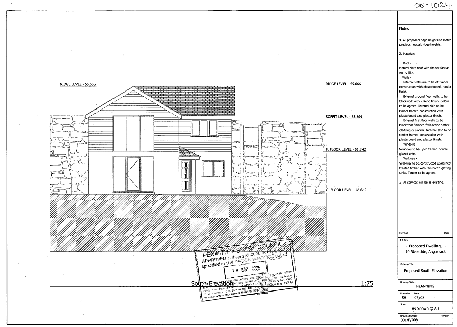
Application 08-1024-P County of Cornwall PENWITH DISTRICT COUNCIL TOWN AND COUNTRY PLANNING ACT 1990 TOWN AND COUNTRY PLANNING (GENERAL DEVELOPMENT PROCEDURE) ORDER 1995 Notice of Conditional Permission for Development To: MR STEVEN HARMAN 26 PENDOUR PARK LOSTWITHIEL CORNWALL ENGLAND PL22 OPQ The PENWITH DISTRICT COUNCIL being the Local Planning Authority HEREBY GRANT permission for the following_development proposed by you in your application dated 20 JULY 2008 and the supporting plans of the land situated at 10 RIVERSIDE, ANGARRACK namely CONSTRUCTION or REPLACEMENT DWELLING on land 0.8; No. PART 3819 (8585 W381) within the parish of. HAYLE. This.approval is granted.subject to the following condition(s): (1) The development hereby permitted.shall be begun before the, expiration Of three years from the date of this permission; (2); No development shall take-place until full details of both hard and soft landscape works have been submitted to and approved in writing by the local planning authority and these-works shall be carried out as approved before any part of the development is first occupied, or the use hereby approved is commenced. The hard landscaping details shall include proposed finished ground levels.or contours; means of enclosure;' car parking layout; other vehicle and pedestrian access and circulation areas; and hard surfacing materials., The soft landscape works details shall include planting plans;fi written specifications; schedules of plants-noting species, plant sizes and proposed numbers/densities where appropriate;' implementation plant All hard and soft landscape works shall be carried out in full accordance With the approved details. Any trees or plants which within a period Of five years from the completion of the_development die, are removed or become seriously damaged or diseased shall be replaced in the next planting season with others of a similar size and species; (3) No development shall take place until details of the materials to be used in the construction of the external surfaces of the building hereby permitted have been submitted to and approved in writing by the local planning authority. Development shall be Your ATTENTION is drawn to the NOTES ATTACHED. (continued). Dated this .....19th..... day of .....September..... 2008 Sustainable Development & Design Manager St. Clare, Penzance. Dec3 ------------------------------------ Application 08-1024-P County of Cornwall PENWITH DISTRICT COUNCIL TOWN AND COUNTRY PLANNING ACT 1990 TOWN AND COUNTRY PLANNING (GENERAL DEVELOPMENT PROCEDURE) ORDER 1995 Application 08-1024-P carried out in accordance with the approved details. For the following reason(s): (1) ,In accordance with the requirements of Section 91 of the Town and Country Planning Act 1990 (as amended by Section 51 of the Planning.and Compulsory Purchase Act 2004). (2) In the interests of visual and residential amenity. (3) In the interests of visual amenity; The planning policies relevant to this decision are: Penwith Local Plan.GD-1, GD-2, H-6, H-18 m Cornwall Structure Plan 1, 2, 3, 10, 16, 26, 27, 28 The full wording of the policies can be inspected at the Council Offices. Reason for Approval The development is considered to be in accordance with the policies of the Development Plan detailed above, and there are no material considerations of such weight as to warrant refusal. Informative (1) This decision relates to the following plans only: PROPOSED: OOl/P/OOl, 002, 003, 004, 005, 006, 007, 008, 009. Sustainable Development & Besign Manager St. Clare, Penzance. Dec3 ------------------------------------ 08-1024 20th July 2008 Design & Access Statement for 10 Riverside, Angarrack Design Statement Mr Steven Harman purchased the land in 2006 with the site already having outlined planning. When purchased there was a derelict house present however as stipulated in the title deeds the house had to be demolished by the owner within the allotted time. It is also stipulates that any new building must not. intrude into the Network Rail safety working area under the viaduct, this distance is 5 metres from the face of the viaduct. The site, measuring approx 256.42 sq. m, is situated towards the North East foot of the Angarrack Rail Viaduct. The site is set on a gentle slope running uphill from the front- of the Site to the rear The boundary around the site is mainly retaining wall apart from the southern boundary, which has no visual boundary with the lawn continuing under the viaduct itself. The only purpose for the land will be residential use. Through Angarrack the housing styles change erratically with semi detached houses, detached houses, bungalows, and terrace housing all being constructed a stones throw from each other. It is hard to see which style of housing: is the more prominent. The aim of the design is to meet current building regulation standards as well as to blend into the surrounding lands'cape with as little visual disturbance as possible however at the same time still manage to be aesthetically pleasing. When looking towards the site from a distance there is no clear common roofline along the top terrace of houses. I have taken the ridge height recorded on topographical survey from the existing dwelling and based my design around the same height. With the site so close to the Railway Viaduct the amount of Sunlight hitting the proposed dwelling was not ideal meaning I had to capture as much of the natural light as possible, maximising its effect within the building in order to keep the property suitable lit thus using less alternative light sources forcing the design to be based around southerly facing glazing. The proposed design is a 3 bedroom detached house. The ground floor measures 79.22 sq. m consisting 3 bedrooms (1 master bedroom with en suite, 1 double bedroom, & 1 single bedroom) and master bathroom with access to the garden. The first floor measures 78.62 sq. m consisting Living room, Kitchen/Diner, Office, WC and Cloakroom. The proposed dwelling will use the existing mains services as previously used by the previous house. With the existing dwelling constructed from rendered blockwork and with a white surface finish I wanted to tie my design into this however at the same time try and take the influences of the surrounding greenery and incorporate this into the finish product. With this in mind I came to the conclusion to keep the existing white render finish‘on the ground floor of the dwelling but to instead clad the first floor using a timber finish allowing it a greater chance to blend into its surrounds. The dwelling ------------------------------------ will be constructed externally using blockwork with a white K Rend finish to the Ground Floor with. timber cladding fixed to timber battens to the outside of the blockwork on the first floor. Internally all non-load bearing walls will be constructed «using plasterboard fixed to timber framing finished with a plaster finish with load bearing walls constructed using blockwork with a plaster finish. The roof Will be finished with natural slate with both timber fascia and soffit. The windows Will be UPVC framed double glazed units along with all external doors. Access Statement Vehicular access and parking to the property shall be gained from Riverside, Angarrack over a newly reconstructed reinforced concrete bridge, which replaced the original steel beamed bridge. A designated, parking bay shall be constructed on land adjacent to the viaduct. This location was previously used for parking to the original dwelling. Pedestrian/Disabled access will be gained via the walkway connecting Back Lane, Angarrack to the First Floor of the proposed property.
- Printer-friendly version
- Login or register to post comments
- Permalink
Contributions
- Angarrack Defibrillator Team (25)
- Angarrack Inn (336)
- Angarrack Methodist Chapel (3)
- Carol (15)
- Gail (1)
- GordonG (12)
- Hayle Development Group on Facebook (5)
- Hayle Harbour Authority (4)
- Hayle Town Council (5)
- louise (1)
- Lynne (111)
- Mal (1)
- MattBuckley66 (9)
- Neil (22)
- Neils Garden Care (9)
- Russell (21)
- Secretary - Christmas Lights (141)
- Steve (3)
- webmaster (5122)
Book page
Similar
- Consultee comments | PA17/00288 | Application for removal of condition 2 in respect of Decision Notice PA15/01953 - 12 Back Lane
- Comments | PA17/00288 | Application for removal of condition 2 in respect of Decision Notice PA15/01953 - 12 Back Lane Angarrack
- Approved with conditions | PA17/00288 | Application for removal of condition 2 in respect of Decision Notice PA15/01953 - 12 Bac
- Consideration at Hayle Town Council | PA17/00288 | Condition 2 Decision Notice PA15/01953
- PA17/04948 | Submission of details to discharge condition 6 in respect of Decision Notice PA17/00288 dated 9th March 2017 - 12 B
Similar across site
- 080720 | W1/08-1024 | Construction of replacement dwelling Head No(s): 61815 | 10 Riverside Angarrack
- Consultee comments | PA17/00288 | Application for removal of condition 2 in respect of Decision Notice PA15/01953 - 12 Back Lane
- Comments | PA17/00288 | Application for removal of condition 2 in respect of Decision Notice PA15/01953 - 12 Back Lane Angarrack
- Approved with conditions | PA17/00288 | Application for removal of condition 2 in respect of Decision Notice PA15/01953 - 12 Bac
- Consideration at Hayle Town Council | PA17/00288 | Condition 2 Decision Notice PA15/01953
.png)









.png)











Recent comments
11 weeks 3 days ago
16 weeks 3 days ago
16 weeks 3 days ago
31 weeks 3 days ago
50 weeks 6 days ago
50 weeks 6 days ago
50 weeks 6 days ago
50 weeks 6 days ago
1 year 20 weeks ago
1 year 34 weeks ago